ALUPROF MB-79N

Trieda hliníkových okien a dverí s výhodnou cenou.

Hliníkové okná Aluprof MB-79N predstavujú bezproblémový výrobok s cenovo výhodnou alternatívou medzi hliníkovými okennými konštrukciami so zvýšenou tepelnou izoláciou. Hliníkové okná odporúčame v prípade, že sú požiadavky  na výplne otvorov náročné na veľkosť konštrukčných rozmerov. 3-komorovú konštrukciu s prerušeným tepelným mostom dodávame hlavne v prevedení s trojsklom. Široká škála farebného prevedenia je ďalšou výhodou hliníkového systému. Kontaktujte nás a poradíme Vám so správnym návrhom okien a dverí.

Obrázky nemusia plne zodpovedať skutočnosti a detaily (farbu a pod.) je nutné pred zadaním do výroby presne špecifikovať s obchodným oddelením.

ALUPROF MB-79N

Technické parametre

DOPORUČENIE

Rodinné domy, Novostavby, Rekonštrukcie

KOVANIE

Celoobvodové kovanie

OPTIMÁLNE PREVEDENIE 3 SKLO (Uw=0,96)

Pre štandardné rekonštrukcie domov a stavieb s optimálnou úsporou tepelnej energie a optimálnou cenou.

VÝSTUHY

Oceľovo-pozinkované po obvode rámu a krídla

NÍZKOENEGETICKÉ PREVEDENIE 3 SKLO + Teplý rámik (Uw=0,81) (SI)

Pre rodinné domy, novostavby a rekonštrukcie zamerané na úsporu tepelnej energie.

TEPELNÁ IZOLÁCIA

systém s prerušeným tepelným mostom

MODERNÝ VZHĽAD

možnosť použitia skrytého kovania

ZATEPLENIE

dodatočné zateplenie systému na SI prevedenie

NOSNOSŤ

vysoká nosnosť pri ťažkom zasklení, možnosť využitia väčšej plochy skla

TEPLÝ RÁMIK

Pri použití teplého rámiku Swisspacer sa dosahujú vyššie teploty na okrajoch skla.

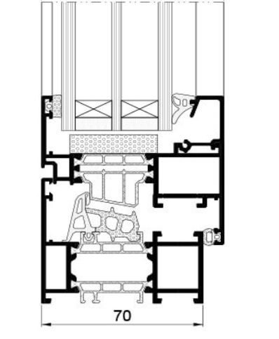
Zloženie systému

Profil MB-79N ST

Profil MB-79N SI

Bezpečnostné kovanie

Trojsklo

Dvojsklo

Farby RAL

RAL 7001 Striebrošedá

RAL 7012 Čadičová šedá

RAL 7015 Bridlicová šedá

RAL 7016 Antracit

RAL 7021 Čierno-šedá

RAL 7022 Tienová šedá

RAL 7024 Grafitová šedá

RAL 7035 Svetlošedá

RAL 7037 Prachová šedá

RAL 7039 Kremeň

RAL 7040 Okenná šedá

RAL 7043 Dopravná šedá

RAL 8016 Mahagónová hnedá

RAL 8017 čokoládová hnedá

RAL 8019 Tmavohnedá

RAL 9002 Šedo biela

RAL 9005 Čierna

RAL 9006 Strieborný hliník

RAL 9007 Šedý hliník

RAL 9016 Dopravná biela

Farby ADEC - drevonástrek

S106 Borovica

B108 Buk

C110 Čerešňa

C212 Čerešňa

D101 Zlatý dub

D207 Winchester

D210 Rustikálny dub

J107 Jedľa

M103 Mahagón

M204 Mahagón Sapeli

O102 Orech

W109 Višňa

W205 Wenge

Farby Anoda

C0 Natural

C23 Zlatá

C31 Nerez

C32 Champagne

C33 Oliva

C34 Hnedá

Sklá

ARENA / CREPI

DELTA MAT

FLUTES

VISION / ČINČILA

KATHEDRAL

MASTER CARRE

MASTER POINT

MATELUX

MONUMENTAL

SILVIT

WATERFALL / DUBOVÁ KÔRA

Kľučky CLASSIC

Biela

Hnedá

Strieborná

Karamel

Titán

Krémová

Kľučky MEDOS DUBLIN

Biela

Strieborná

Antracit

Zlatá

Nerez

Čierna

Hnedá

De Luxe Čierna

AKTUÁLNA AKCIA

Získajte zľavu

Ku každej objednávke získajte až -30% zľavu.

Nezáväzná cenová ponuka